1.水泵在游小猪视频在线观看下载免费污及娱乐康体的使用概述
水泵对小猪视频在线观看下载免费污的循环过滤系统来说就像人体的心脏,它是系统正常运行的枢纽。选好水泵就要从它的主要性能参数入手,水泵主要性能参数是流量、扬程、功率和效率,对于特定的游小猪视频在线观看下载免费污和SPA的系统来讲,它们相互之间随不同的工作状态的变化而变化。只有把握水处理系统的状态及其变化规律,才能选对水泵,使设备运行和水处理效果都处在最佳状态。
循环水泵:小猪视频在线观看下载免费污水泵有它的特殊性:大流量低扬程-优点:整个管路系统过滤系统稳定,节约用电。安全不吸人。大功率水泵建议使用低转速水泵:优点是运行稳定,噪音低,节约用电。水泵的选用必须根据性能曲线配合砂缸来设计
按摩水泵:应考虑选用耐高温的水泵,同时也应考虑水中的化学腐蚀,注重维护保养等。

2.离心泵的主要性能参数
游小猪视频在线观看下载免费污和Spa的循环泵和功能泵由于设计成自灌式,可在忽略水泵的允许吸上真空高度及气蚀量,其主要性能参数有:流量、扬程、轴功率和效率。
2.1 流量Q[m3/h] :水泵流量是单位时间内通过水泵出水口处输出的水量,当然它是在水泵抵抗循环过滤整个系统的压力、获得位能和动能的量度,所以流量就是在一定扬程下的流量,不同的压头就有不同的流量,扬程高时流量小,而扬程小时流量大。
2.2 扬程H[m]:也称为水泵的压头,单位重量液体流经泵后所获得的能量。而系统的压头在特定的游小猪视频在线观看下载免费污循环过滤系统中的变化范围是一定的,初始过滤时,系统压头小,此时流量就大;运行一段时间后,过滤器的拦截物渐渐的阻挡了水流的通道,压头就变大,流量也就相应变小。进出水口相同管径的水泵,当吸水管上负压真空表和出水管上压力表[1]安装在相同水平上时,水泵的扬程就是吸程和压程的总和。影响泵压头大小的因素:1.泵的结构(叶轮大小、弯曲程度);2.转速;3.流量。
2.3 轴功率N[Kw]:马达传给泵轴的功率,也就是泵轴所消耗的功率。
2.4 效率η[%] :水泵的有效功率Ne(指流体所获得的机械能的功率)与轴功率之比值称为效率,η= Ne / N。由于水泵不能把马达输入的功率完全不浪费地传给水流,在水泵内部必然有能量损失,故用效率来衡量能量损失的大小和对能量有效利用的程度,能量损失的原因:1.容积损失;2.水力损失;3.机械损失等。
3.离心泵的特性曲线
图1 水泵的特性曲线
3.1 H-Q 曲线,也叫扬程曲线:水泵的扬程曲线是一条下降的曲线,流量随着扬程的增加而逐渐减小,选泵时常用特性曲线。
3.2 N-Q曲线,轴功率曲线:它是一条上升的曲线,实测轴功率N随着流量Q的增加而增大,当Q=0 时(出水阀门关闭),轴功率最小N=Nmin,此时称之为空载功率。关闭出口阀启动
目的:防止电机过载和烧坏,减轻对过滤器等下游设备和管路管件的冲击。
3.3η-Q 曲线,效率曲线:实测效率曲线具有从最高效率点向两侧下降的变化趋势,当流量由小变大时,效率曲线先上升,再下降,是具有极值点的曲线。水泵设计工作点应为最高效率点,它所对应的数值称为最佳工况参数,高效区范围:η实=(0.7-0.9)η,选用离心泵,尽可能在高效区内工作。
“游小猪视频在线观看下载免费污水泵扬程不得小于送水几何高度和循环系统设备、管道阻力及流出水头之和;水泵扬程宜以计算扬程乘以1.10的保证系数作为选泵。” 在设计选型上要选择有足够富余扬程的水泵,使其能在高效区域内正常工作,这是很必要的。但是,在实际工程设计和计算中,由于缺乏认真研究和分析,在很多情况下都是想当然的主观想象游小猪视频在线观看下载免费污系统工作状态,结果导致水泵出现运行问题和过滤效果不佳问题,或者造成运行费用增加,甚至水泵不能正常工作。
在游小猪视频在线观看下载免费污实际工程中,水泵扬程普遍偏高,常常处于低效状态运行而不为人们注意,有的则不能正常运行,忽略了过高的富余扬程给水泵本身带来的危害,所以水泵在使用中出现的某些问题往往与最初的设计选型有直接关系,正确选择水泵扬程对其正常高效运行至关重要。
4. 水泵扬程和扬程实验
图2 水泵的扬程实验
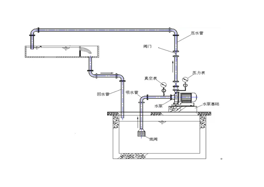
“每台水泵的吸水管上应装设……负压真空表;其出水管上应装设……压力表” ,由于在游小猪视频在线观看下载免费污水泵的进出水管上分别安装了负压真空表和压力表,通过循环过滤时的压力表和真空表的读数,就可以准确测量水泵的扬程和系统的压力,从而根据水泵曲线查出水泵的流量。
水泵扬程是在大气压下的条件下进行的计算,如果有背压的臭氧投加增压泵或换热器的增压泵的工作时的压头损失,不能简单的按照大气压下压头损失的计算。由于没有关注游小猪视频在线观看下载免费污工程的特殊性,在游小猪视频在线观看下载免费污和Spa的工程设计中,循环泵和功能泵的计算扬程往往选得过高,与系统实际工作状态相差甚远,水泵富余扬程过大的问题,当水泵的实际工作扬程明显低于额定工作扬程时,水泵的流量会增加很大,使水泵的功率超过马达的功率,使其发热甚至会坏马达,还会使砂缸的实际流量和滤速过大,影响过滤效果。
4. 水泵富余扬程的问题
如上所述,水泵的扬程包括吸水压头和出水压头。如果水泵的实际流量和扬程点对应的效率η实≥(0.7-0.9)η,可以认为水泵处于高效运行状态,满足这一条件的区域可称为泵的高效运行区内,在这个运行区内,水泵的各项参数间的关系都有一个符合设计要求的性能曲线。
4.1 水泵与管路系统的工作点:对于管路系统而言,进出管线和管件的摩擦力与流量都有很大的关系,在一定范围内,某一压力就对应流量需要一个,流量不断增加,相应的压力也随之增加,因此在管路系统中,压力与流量的特性曲线是一条开口向上的抛物线,这条管路特性曲线和水泵中的扬程和流量的关系曲线的交点,就是小猪视频免费下载高清要研究的水泵在一定管路中的工作点。见下图
图3水泵系统的工作点
4.2 游小猪视频在线观看下载免费污水泵富余扬程时实际工作点:在水处理系统设计时, 如果选取了过大的富余扬程H3=25米,此时的流量为Q3,它对应了设计的最佳过滤速度; 但是在系统运行时发现,在反冲洗时系统工作的最大实际压头损失H2=15米, 此时的流量为Q2,它对应的过滤速度大于了设计的最佳过滤速度;但是反冲洗之后回到了起始过滤的较小压头损失H1=9米,此时的流量Q1就远远大于设计流量Q3,有可能成倍的增加了实际的过滤速度。从滤速与过滤精度的反比关系可知,Q1对应的实际过滤速度远远大于设计流量Q3所对应的过滤速度,所以实际过滤效果就大打折扣了。
4 游小猪视频在线观看下载免费污水泵富裕扬程时实际工作点
如果小猪视频免费下载高清所选择的扬程过分富余,实际工作点与设计工作点就会产生很大的偏差,就会出现许多的问题,更会影响水泵的正常工作和砂缸的过滤精度。过高富余扬程的危害,在某些情况下,不仅仅是严重超载,效率下降的问题,也会因流量增大诱发汽化和气蚀,影响正常运行。解决这个问题的主要方法是调节出口处阀门,减少开启度,使实际工作点移至设计工作点,这时富余扬程就全部消耗在出口阀门上,管路损失增加,这个系统的效率明显降低,这是非常不经济的。
5. 游小猪视频在线观看下载免费污和Spa的循环泵和功能泵的扬程
对于小猪视频在线观看下载免费污和机房高差在5米之内的自灌式循环过滤系统中,如果按流体力学的标准设计时管路时,根据统计得知,绝大多数的初始过滤时压头为(0.8-1)±1bar,反冲洗的压头为(1.2-1.4)±1bar,最大反冲洗压头1.5±1bar,所以水泵扬程的选取在15—17米时才是符合一般正常场合游小猪视频在线观看下载免费污循环过滤工况的(已包括了1.10倍的扬程保证系数)。而对于功能泵的扬程选取上,要实测喷头出口处的实际压力和流量,调整水泵的工作状态,已达到设计的压力和流量。
6.水泵使用技巧
游小猪视频在线观看下载免费污和Spa水泵富余扬程过大时,会影响过滤精度、造成人体伤害,还会过载过热、烧坏马达,汽化气蚀、损坏水泵和管路系统。对于新设计的游小猪视频在线观看下载免费污和水疗,要根据实际工程实际,把各种因素综合考虑后进行扬程计算,不能想当然。对于已经运行的系统,核查泵前真空表和泵后压力表的读数,确定实际工作的系统压头,对存在较大问题的要做必要的如下处理:
6.1更换水泵,选用与实际工作扬程和流量相近的水泵。
6.2切削并缩小叶轮外径,降低水泵的额定扬程,使其与水泵的实际工作扬程相近。缩小叶轮的的直径的公式为(水泵的切割定律):
式中:d1—叶轮缩小后直径
d0—原叶轮直径
h1—水泵实际工作扬程
h0—水泵原额定扬程
6.3水泵启动前,把水泵出水管上的阀门(该阀门位于泵后砂缸前)关闭,启动马达,待水泵运转平稳后,逐渐开启阀门。
6.4通过控制出水口阀门的开启大小,减少水泵的流量,从而减少水泵负载和发热量。
7. 循环水泵在规范中的要求注意的事项
7.1 池水循环净化系统的循环水泵、水上游乐设施的功能循环水泵和水景系统的循环水泵应分开设置。
7.2 池水循环净化系统循环水泵的选择应符合下列规定:
(1)水泵的额定流量不应小于计算出的池水循环净化处理系统的循环水流量,保证该池池水循环周期所需要的流量;
(2) 水泵的扬程不应小于送水几何高度、循环净化处理系统设备和管道系统阻力及水池进水口所需流出水头之和乘以1.10的安全系统的计算值;
(3) 水泵应为高效节能、耐腐蚀、低噪音的小猪视频在线观看下载免费污专用变频调速水泵;
(4) 压力颗粒过滤器的循环水泵不宜少于2台,且宜设置备用泵并能与工作泵交替运行;

7.3 石英砂过滤器的反冲洗水泵,宜采用池水循环水泵工作泵与备用泵并联运行工况设计,并按单个过滤器反冲洗时所需要的流量和扬程校核调整循环水泵的工况参数。
7.4 水上游乐池游乐设施的功能循环水泵的设置应符合下列规定:
(1) 供应滑道润滑水的水泵必须设置备用水泵,并能交替运行;
(2) 环流河推流水泵按多台水泵并联同时运行工况设计时,可不设置备用水泵。
7.5 水景给水水泵应按多台泵并联运行工况设计,可不设置备用水泵。
7.6 池水净化循环水泵、游乐设施功能循环水泵及水景循环水泵的设计应符合下列规定:
(1)应设计成自灌式,且每台水泵应设置独立的吸水管;
(2) 逆流式循环时应靠近均衡水池;顺流式池水循环方式时应靠近游小猪视频在线观看下载免费污的回水口处或平衡水池;
(3) 每台水泵应配置下列附件:
a)吸水管上应装设可曲挠软接头、阀门、毛发捕集器和真空压力表;
b)出水管上映装设可曲挠软接头、止回阀、阀门和压力表;
c)水泵进、出水管上应先安装变径管再安装其他附件。
(4)从池底直接吸水的水泵吸水管上应设置专用的防吸装置;
(5)水泵机组和管道应设置减震和降低噪声的装置。
